0909 289 277

THE OPUSK – METROPOLE

The Opusk Thủ Thiêm – Biểu tượng sống đẳng cấp giữa lòng đô thị mới
Tọa lạc ngay trung tâm khu đô thị mới Thủ Thiêm (TP.HCM), The Opusk là dự án căn hộ cao cấp được phát triển bởi SơnKim Land – thương hiệu bất động sản danh tiếng gắn liền với những công trình tinh tế và đẳng cấp. Với kiến trúc hiện đại, không gian sống sang trọng cùng hệ thống tiện ích chuẩn quốc tế, The Opusk hứa hẹn sẽ trở thành biểu tượng mới của khu vực phía Đông Sài Gòn.
Trong bài viết này, Mai Phương sẽ đồng hành cùng bạn khám phá chi tiết layout thiết kế và mặt bằng căn hộ tại The Opusk, mang đến cái nhìn toàn diện về các lựa chọn không gian sống lý tưởng tại dự án đẳng cấp này.

THÔNG TIN TỔNG QUAN VỀ MẶT BẰNG THE OPUSK

Tên dự án: The OpusK
Vị trí: Khu phức hợp The Metropole Thủ Thiêm, khu chức năng số 1, khu đô thị Thủ Thiêm, TP. Thủ Đức, TP. HCM
Quy mô: 2 tòa tháp cao từ 30 – 36 tầng
Diện tích công trình: 8,518 m2
Chủ đầu tư: Tập đoàn SonKim Land và Quốc Lộc Phát
Các tiện ích: Hồ bơi vô cực, thư giãn tại phòng massage và sauna, phòng golf giả lập,…
Loại hình căn hộ: 2PN, 3PN, 4PN
Số lượng căn hộ: Duy nhất 150 căn hộ cao cấp

Mặt bằng tiện ích tại tầng triệt

Mặt bằng tiện ích tại tầng 5

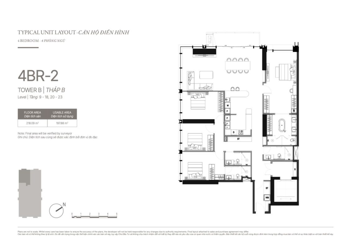
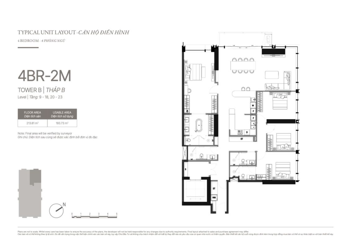
Mặt bằng tầng 9-18, 20-23

Layout căn hộ 2PN từ tầng 9-18, 20-23

Mặt bằng 2PN loại 1

Mặt bằng 2PN loại 1

Mặt bằng 2PN loại 2

Mặt bằng 2PN loại 2

Layout căn hộ 4PN từ tầng 9-18, 20-23

Mặt bằng 4PN loại 1

Mặt bằng 4PN loại 1

Mặt bằng tầng 6-7-8

Layout căn hộ 3PN tầng 6-7-8

Mặt bằng căn hộ 3PN loại 1

Mặt bằng căn hộ 3PN loại 2

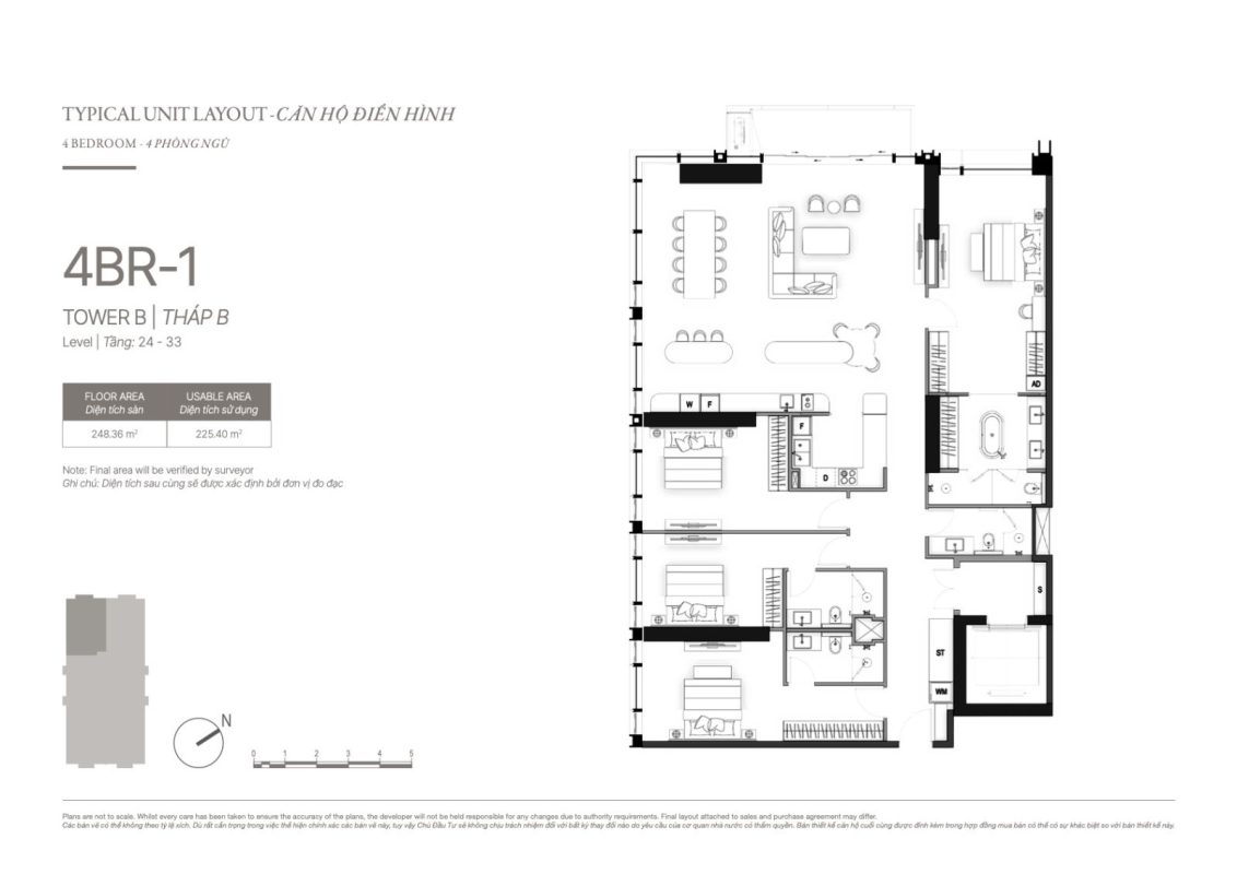
Mặt bằng tầng 24-33

Layout căn hộ 2PN từ tầng 24-33

Mặt bằng 2PN loại 1

Mặt bằng 2PN loại 1

Layout căn hộ 4PN từ tầng 24-33

Mặt bằng 4PN loại 2

Mặt bằng 4PN loại 2

The Opusk – Không gian sống đỉnh cao giữa lòng Thủ Thiêm

Nếu bạn đang tìm kiếm một chốn an cư sang trọng tại trung tâm đô thị mới Thủ Thiêm, The Opusk chính là lựa chọn lý tưởng. Sở hữu thiết kế căn hộ đa dạng cùng hệ thống tiện ích đỉnh cao, dự án không chỉ đáp ứng nhu cầu nhà ở, mà còn kiến tạo một phong cách sống hiện đại, tinh tế và đầy giá trị dành cho cư dân thành đạt.

Vừa rồi là những thông tin chi tiết về mặt bằng dự án The OpusK, hy vọng đã giúp Qúy khách hàng có thể dễ dàng hơn trong việc lựa chọn loại hình căn hộ phù hợp với nhu cầu cá nhân.

Nếu Qúy khách có nhu cầu mua và đầu tư căn hộ tại The OpusK, hãy liên hệ Mai Phương qua hotline/zalo 0909.289.277 hoặc đăng ký thông tin bên dưới để được hỗ trợ và tư vấn chi tiết nhé ạ!

Để lại một bình luận

Email của bạn sẽ không được hiển thị công khai. Các trường bắt buộc được đánh dấu *